Apartment
Ref. C8009

€215,000 Plus VAT
Palouriotissa Nicosia
Apartment Off-Plan
2 Bedrooms 2 Bathrooms
111m² Total Covered
Parking 1 Covered
Energy Efficiency Class A

FOR SALE - 2 Bedroom Apartment
in Nicosia, Palouriotissa


For Sale Modern 2 Bedroom Apartment in Palouriotissa

New development in Pallouriotissa, offers a selection of 1-, 2-, and 3-bedroom apartments with unobstructed views.

The project is ensuring both comfort and tranquility. Built to Energy Efficiency Class A, it features high construction standards and a modern architectural design that combines elegance and practicality.

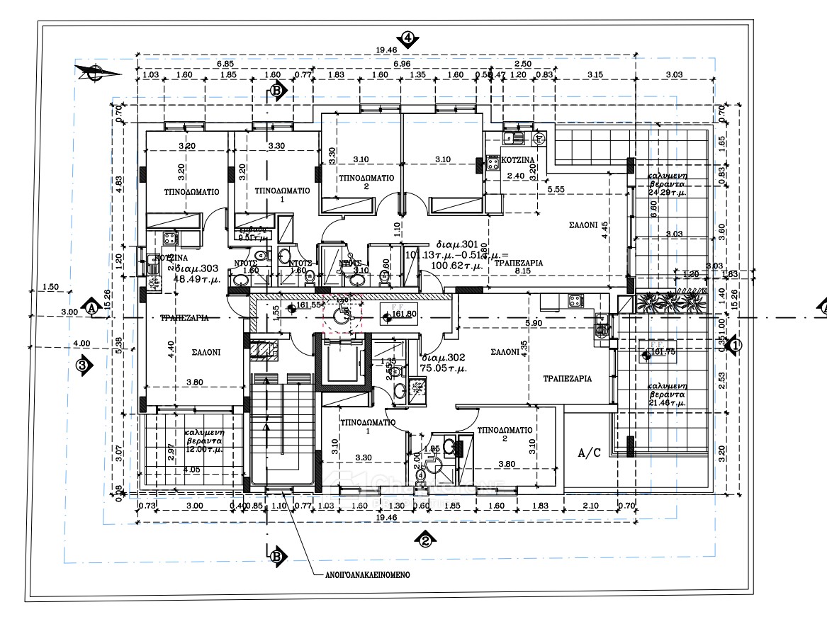
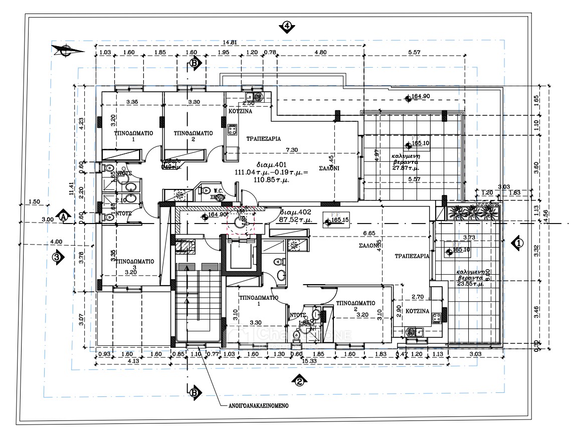
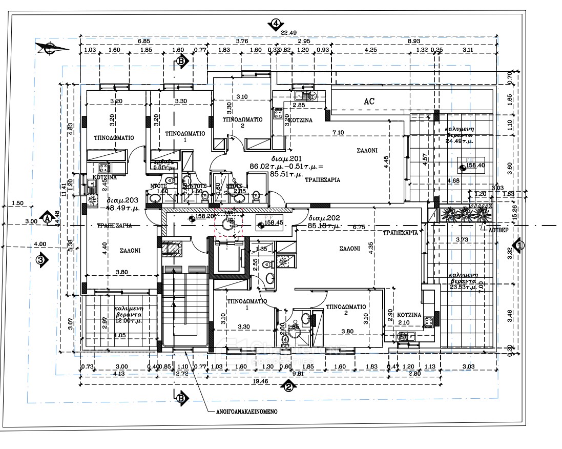
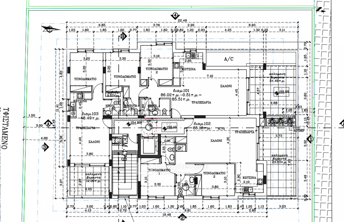
This modern 2-bedroom Situated on the 1nd floor  of luxury 4-storey building ,includes a spacious open-plan kitchen and living area, two bathrooms, apartment covers a total of 111m², including a 25m² covered veranda .

It includes private parking, a storage room, and elevator access.

It provides close proximity to shops, restaurants, schools, and public transport. Whether you are looking for your new home or a solid investment opportunity, this property offers the perfect blend of style, convenience, and location. Experience modern urban living in one of Nicosia’s most sought-after neighborhoods.

 

 

En suite bathrooms
Energy Efficiency - Class A
Parking - 1 Covered
Plus VAT
Storage room
THIS WEBSITE IS USING COOKIES
We use cookies to provide necessary functionality and give you the best experience on our website. Continue if you are happy to receive all cookies on this site. Read our Cookies Policy.