Detached Villa
Ref. C8160

€450,000 Plus VAT
Strovolos Chryseleousa
Detached Villa New - Ready
288m² Total Covered
Parking 3 Covered
Energy Efficiency Class A

FOR SALE - Detached Villa
in Nicosia, Strovolos - Chryseleousa


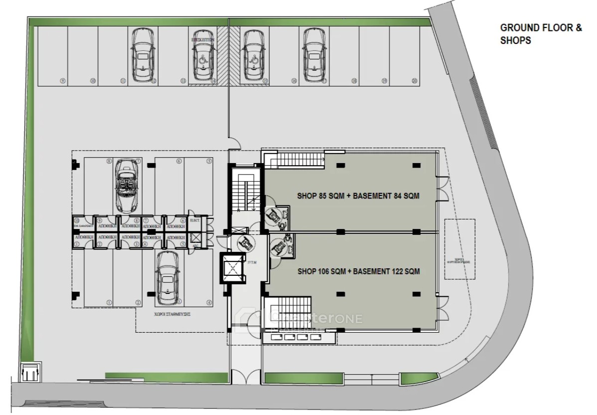
For Sale Shop 85m² in Strovolos

The area is bustling with shops and services along Perikleous and Stavrou avenues. Private schools and municipal parks are just a short distance away, additionally, access to the city center and the intercity motorway are also very convenient from this location. 

Is a contemporary five-storey building with extra large, three-bedroom apartments, of which the top floor apartment is a penthouse with magnificent 360° panorama of Nicosia. 

The Property has an area of 288 m2  , Indoor Area 106m2 +  Basement 122 m2   , Parking :4 Spots , uncovered Veranda : 121  m2

Top-floor penthouse with 360° panoramic views of Nicosia.
.
Secure access: Gated entrance with password-controlled parking and main building entry.
Location:
Strovolos ,Close to shops, services, private schools, and municipal parks. Convenient access to Nicosia city center and intercity motorway.
Highlights:
Contemporary architecture with extra-large apartments. Exclusive rooftop gardens for select units.
Perfect blend of residential comfort and commercial convenience.

Energy Efficiency - Class A
Parking - 3 Covered
Plus VAT
Provision for Air-Condition
THIS WEBSITE IS USING COOKIES
We use cookies to provide necessary functionality and give you the best experience on our website. Continue if you are happy to receive all cookies on this site. Read our Cookies Policy.